Construction de porte et fenêtre non-isolées
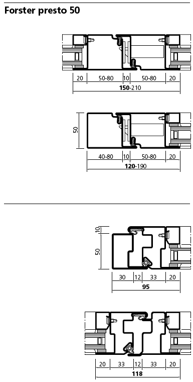
La série Presto assemblée en nos ateliers offre une gamme d’éléments de façade polyvalents pour la réalisation de portes et fenêtres non isolées. Avec un assortiment de profilés adaptés, cette série permet la fabrication de diverses variantes de fenêtres en saillie.
Profondeur de pose variée
Grâce à une gamme étendue de profondeurs de profilés, la série Presto permet la création de constructions robustes et fiables, sur mesure selon les besoins du client.
Matériau et finition de qualité
Les profilés utilisés sont en acier soudé, assurant une solidité accrue. Les surfaces sont disponibles en acier blanc, électro-zingué, sablé et revêtu d’une couche de peinture en poudre de zinc.
Contactez-nous
Pour en savoir plus sur la série Presto et ses applications pour vos projets de portes d’entrée et d’éléments de façade, n’hésitez pas à nous contacter dès maintenant




