Isolation acoustique élevée pour un environnement serein
Les portes acoustiques de la gamme RS, – 51 dB fournies par G-Block offrent une solution idéale pour les environnements nécessitant une isolation sonore de haute performance. Conçues pour répondre aux exigences des espaces professionnels, elles garantissent une tranquillité absolue.
Caractéristiques principales
Les portes acoustiques de cette série sont homologuées pour leurs performances élevées en matière d’isolation sonore. Elles sont disponibles en version simple et double battant, avec des modèles standards et des dimensions spéciales, permettant une grande adaptabilité.
Données techniques
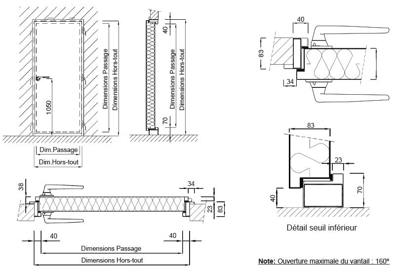
- Description : Porte acoustique de 83 mm d’épaisseur, avec cadre et vantail métalliques en tôle polie de 1,5 mm d’épaisseur.
- Remplissage intérieur : Complexe insonorisant, assurant une isolation maximale.
- Fermeture : Poignée à serrage progressif, garantissant une fermeture hermétique.
- Traitement de surface : Apprêt synthétique (à peindre) pour une finition personnalisable.
- Coefficient de transmission thermique : Ud = 1,89 W/m²K
- Certificat acoustique : Valable pour la porte sans accessoires supplémentaires.
- Oculus circulaire : Optionnel. Non recommandé pour les portes extérieures en raison des risques de condensation.
| Un battant (largeur x hauteur mm.) | ||
| Modèle | Dim. passage | Dim. Hors tout |
| RS3/01 | 800x2000 | 880x2110 |
| RS3/02 | 900x2000 | 980x2110 |
| RS3/03 | 1000x2000 | 1080x2110 |
| Deux battant (largeur x hauteur mm.) | ||
| Modèle | Dim. passage | Dim. Hors tout |
| RS3/21 | 1400x2000 | 1480x2110 |
| RS3/22 | 1600x2000 | 1680x2110 |
| RS3/23 | 1800x2000 | 1880x2110 |
| RS3/24 | 2000x2000 | 2080x2110 |
| Porte tiercée (800+600) pour RS3/21 | ||
Accessoires et options
La Série Acoustique – 51 dB propose une importante gamme d’accessoires pour répondre à tous vos besoins spécifiques. Que ce soit pour des dimensions spéciales ou des finitions particulières, ces portes s’adaptent parfaitement à votre environnement.
Contactez-nous pour plus d’informations
Pour plus d’informations sur les portes acoustiques Série Acoustique – 51 dB, appelez-nous dès maintenant ou contactez-nous. Nos experts sont prêts à vous aider et à répondre à toutes vos questions.










